




















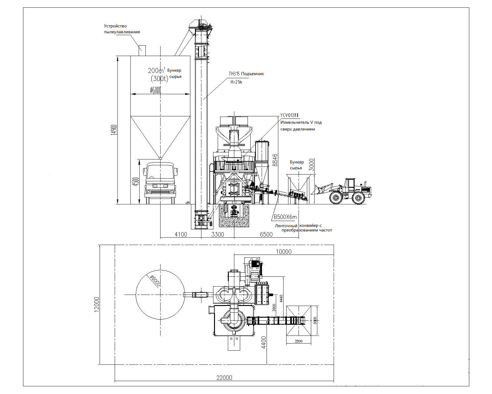
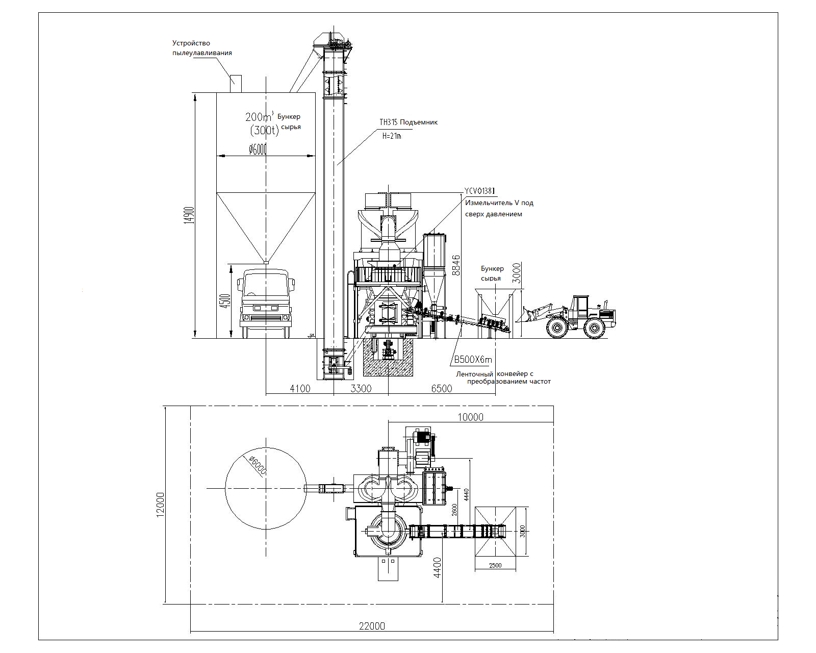
Описание технологического процесса: обрабатываемый материал дробится щековой дробилкой, затем поднимается ковшовым элеватором в транзитный бункер, затем материал подается в камеру измельчения основного агрегата с помощью электромагнитного вибрационного питателя (подключенного к основному агрегату и который подает материал при помощи электромагнитной индукции. Это позволит уменьшить подачу материала, когда в основном агрегате находится много камня, и увеличить подачу материала, когда в основном агрегате мало камня; такое решение позволяет защитить основной агрегат и повысить эффективность). Благодаря центробежной силе вращающегося шпинделя и действию пружины высокого давления, шлифовальный ролик откидывается наружу и прижимается к шлифовальному кольцу, а отвал подгребает материал и передает его вверх в пространство между шлифовальным роликом и шлифовальным кольцом, чтобы измельчить и раздробить его с помощью качения шлифовального ролика.
После измельчения порошок проходит через воздуходувочную машину, обеспечивающую циркуляцию воздуха. Затем порошок идет в сепаратор порошка на сепарацию. Более грубый измельченный материал (>70 микрон) попадает обратно в камеру измельчения для повторного измельчения, мелкий порошок, соответствующий требованиям (<70 микрон), попадает в циклонный порошковый коллектор вместе с потоком воздуха и выгружается через трубу выгрузки порошка в качестве готового продукта. Воздушный поток проходит через двойной циклонный коллектор, а затем поступает в воздуходувочную машину, образуя замкнутый контур, что позволяет машине работать должным образом. Остаточный воздух поступает в импульсный пылеуловитель через канал для остаточного воздуха, очищается и выводится из машины. Наконец, готовый материал собирается непосредственно в порошковом коллекторе. Дно порошкового коллектора соединено с винтовым транспортером, который подает материал на ковшовый элеватор, поднимающий материал в бункер готовой продукции, дно этого бункера соединено с упаковочной машиной, которая производит упаковку в мешки весом 25 кг, или упаковочной машиной для биг бэгов, так происходит упаковка готового материала для сбора.













Наши специалисты помогут подобрать оборудование под ваши задачи. Работаем с любыми видами промышленного оборудования из Китая.






